Fleetwood Berkshire 28603P

Fleetwood Homes
Fleetwood Berkshire 28603P Double Wide Rendering

Floor Plan Details

1501 Sq. Ft.
3 Bedrooms
2 Bathrooms

Request More Information

Name(Required)
I own land or have land for my new home:(Required)

Gallery

Click images to enlarge. Images may not be of actual lot model.

Virtual Tour (if available)

Floor Plans Details

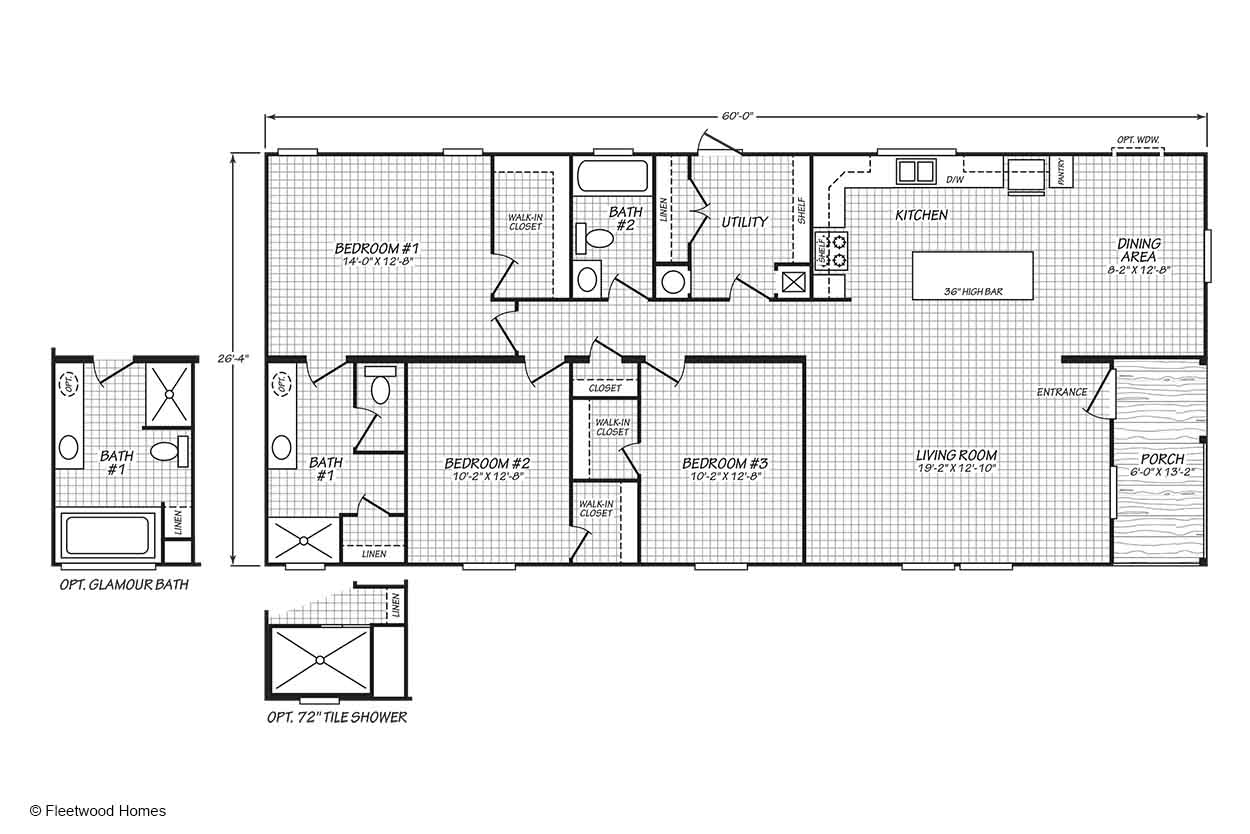
Imagine stepping into a welcoming home that perfectly captures comfort and functionality. The Berkshire 28603P by Fleetwood Homes is more than just a house; it’s a place where memories are made, offering 1,501 square feet of thoughtfully designed living space. This three-bedroom, two-bathroom haven is ideal for families or anyone looking to enjoy the lifestyle offered by the charming area of LaGrange, NC, and its neighboring communities. Its versatile nature also makes it an excellent option for a coastal home, providing a serene retreat near the ocean.

As you enter the Berkshire 28603P, you’ll be greeted by an expansive living room, designed to be the heart of your home. Here, you can easily envision cozy movie nights or lively gatherings with friends and family. The open floor plan naturally flows into the kitchen, an inviting space perfect for culinary experimentation and shared meals.

  • The kitchen provides a generous island, which doubles as a workspace and dining area, seamlessly integrating cooking and socializing.
  • Appliances cater to all cooking needs, ensuring a perfect meal every time.
  • Plenty of cabinet space ensures orderly storage, keeping your counters clean and organized.

For those moments when relaxation is key, the master bedroom offers a personal sanctuary. This spacious room creates the perfect setting for rest and rejuvenation.

  • Bedroom 1 includes an en-suite bathroom, a luxurious escape equipped with a roomy shower and a relaxing tub.
  • An ample walk-in closet provides ample storage, making it easier to keep your sanctuary clutter-free.

Two additional bedrooms are designed with flexibility in mind. They are ideal for children, guests, or even a home office, showing how adaptable your living space can be.

  • Each bedroom is perfectly sized to balance comfort and utility.
  • A second bathroom conveniently serves these rooms, featuring modern amenities and stylish finishes.

One cannot overlook the practicalities that the Berkshire 28603P has to offer. It’s not just about the beautiful rooms but also the thoughtful design that makes everyday living effortless.

  • A separate utility room ensures laundry is conveniently tucked away yet easily accessible.

Whether you’re looking to settle in LaGrange, NC, or seeking a cozy coastal escape, the Berkshire 28603P delivers. The community vibe of LaGrange complements this home perfectly, offering you a friendly, supportive neighborhood while the beach provides relaxation and leisure opportunities.

Considering all the wonderful features and the serene lifestyle that comes with it, potential homebuyers are encouraged to visualize themselves enjoying every corner of this exceptional floor plan. The Berkshire 28603P by Fleetwood Homes not only encapsulates the essence of a warm, inviting family home but also offers a practical base for any stage of life.

I invite you to see yourself living here, exploring all the cozy nooks, throwing BBQ parties in your future backyard, and taking those short drives to the coastal beaches. Reach out for more information, and let’s take the first step together toward making this dream home a reality.