Axis 32563N

Cavco Rocky Mount
Modern duplex building with dark siding, two front doors, and a landscaped yard evokes the clean lines of a contemporary manufactured home, surrounded by trees in the background.

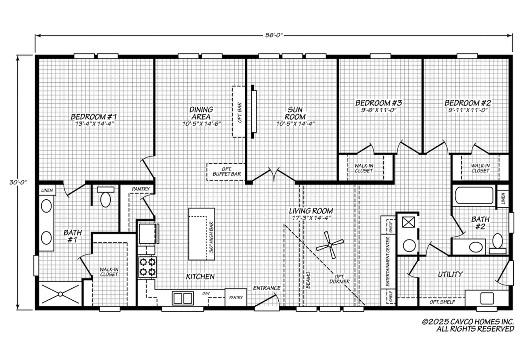
Floor Plan Details

1680 Sq. Ft.
3 Bedrooms
2 Bathrooms

Request More Information

Name(Required)
I own land or have land for my new home:(Required)

Gallery

Click images to enlarge. Images may not be of actual lot model.

Virtual Tour (if available)